

發布時間:

中國 · 廣西賀州
項目導讀:
近日,科利瑞克的廣西賀州老客戶去年所增購的四條HGM超細磨生產線正式落地投產,助力客戶第三期企業擴產計劃。截至目前,該企業已投產科利瑞克各類生產線共十條,創造數億產值。
01、鑄就輝煌,有科利瑞克設備相伴

項目合作清單
客戶作為廣西賀州當地大型化工材料制售企業,是科利瑞克超細磨粉機的忠實用戶。截至目前,與科利瑞克合作三期工程項目,共歷時四年有余。
自2019年來,訂購超細磨粉機、超細立式磨粉機生產線達十條,僅碳酸鈣超細粉年產共計已逾50萬噸,帶來十數億產值。
02、本期項目詳解
生產線:2條HGM-125升級超細磨粉機生產線
物料種類:碳酸鈣超細粉
細度要求:600-2000目
三期總年產能:50萬噸
單條設備配置:1臺HGM125主機、1臺多頭選粉機、1臺選粉機、1臺風機、1臺錘式破碎機、1臺斗式提升機、1臺給料機、2臺卸料閥、1臺空壓機、1臺脈沖除塵器。
產成品用途:造紙、油漆、涂料、填料等

單條生產線3D展示圖
先前已投產的精制粉生產線由科利瑞克整體設計制造,部分采用裝載多頭選粉機的升級版超細磨粉定制生產組件。
科利瑞克精研:多頭選粉機,以契合客戶高端粉體市場的定位。
有別于傳統環輥磨,搭載多頭選粉機的主機設備將整體產能與質量再上一個臺階,產成品細度可由原先325-1500目躍升至1500-3000目。
03、項目故事:發展存量,轉型質量
項目速覽:客戶公司由以數量打開局面的一、二期計劃,拓展至保有產能存量,以質取勝的三、四期計劃。前期優先投產主要側重機器綜合制備能力。后隨生產戰略重心轉移,逐漸發展特定匹配下游產成品行業的粉體制備線。
敏銳把握市場前景,物流行業華麗轉身
1、客戶企業原先從事物流行業,積累下廣泛的銷售渠道資源。后對化工粉體行業深入考察調研后,敏銳覺察非金屬礦石制粉行業的下游需求市場前景廣闊,決心投身于超細磨粉產銷行業。經過多年的發展,現屬超細粉制造銷售的大型企業。
2、隨著產能與市場需求發展,客戶對于產成品粉體的細度要求越來越高,從中低端粉體走量轉型至以中端粉體為主、高端超細粉為輔“打好質量戰”的戰略轉型,著力提升產成品附加值。
3、在適配各類下游產成品市場的轉型中,以造紙業添加劑為例,為契合該行業對白度、細度、黏度的高要求,售后團隊在生產線中的助磨劑等進行了具體調整。
4、該期項目的正式投產,標志著進一步深化與周邊造紙廠、油漆廠等下游市場形成聯動,以低碳環保的產銷閉環促進地方產業集群發展。以立足廣西輻射全國的戰略眼光深化拓展未來市場。完成企業節能減排任務,成功實現了當地經濟效益、社會效益與生態效益同步提升。
每期計劃,科利瑞克都盡力契合發展戰略。
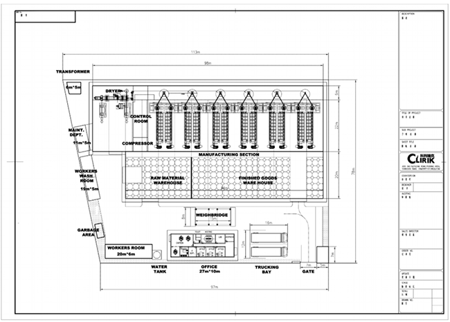
04、多次考察雕琢適宜場地規劃

廠區規劃圖紙
項目初期:項目組首次趕赴現場,以降本增效原則,結合實際條件進行全封閉式廠房設計。
項目中期:待設備正式投入生產后,售后人員再次趕赴現場進行銜接調試。并對企業設備運行人員進行相關調試培訓。
項目后期:科利瑞克也將配備設備組人員當地停駐,確保客戶售后省心。

廠區規劃3D展示圖
科利規劃模式優勢:保證生產線降本增效
(1)生產線為全封閉式廠房設計,能較大程度隔絕生產中的粉塵和噪聲污染;
(2)生產線配備智能數控設備,精確控制成品粉體細度與產量,提升便捷性、安全性;
(3)以直線并排方式有序規劃場地,便于后期檢修,同時為單條行車貫通整個生產場地提供條件。
(4)負壓生產倉的設計為客戶提供綠色、安全、高效、低噪的生產要求。
05、本期項目現場&往期回顧
2022年項目回顧
2023年項目現場

06、生產線設備與工藝流程

HGM系列超細磨粉機工藝流程
裝載機將破碎后粒徑大小在500毫米以下的礦石輸送至一級震動給料機,通過變頻電機智能調節進料速度,保證大塊礦石輸送至二級震動給料機時平穩、均勻。
隨后礦石將被輸送入一級鄂式破碎機破碎至150毫米以下,同時均勻落在底部皮帶輸送機上?,F場工作人員負責檢查篩選出皮帶上的低品位礦石,以有效提高礦石的白度與品位。經過挑選后再次進入二級錘式破碎機,進一步細碎。
礦石最后進入底部垂直提升機,將物料提升至料倉頂部再通過提升機輸送至磨粉生產線的進料緩沖倉。倉內安裝有電子安全限位裝置,限位裝置將進行智能化全時段安全生產監控,當限位報警時,需及時補充或停止原料的供應。

CLUM系列超細立式磨粉機工藝流程
主機電機通過減速機帶動碾盤轉動,同時高壓風機產生的氣流從進風口進入主機,物料經喂料螺旋送入立磨主機內落入碾盤中央,在離心力作用下,物料從碾盤中央向四周散開,經過碾盤上的輥道區域時,受磨輯壓力,大塊物料被直接壓碎,小顆粒物料受壓后再進行粒間研磨起到進一步粉碎作用,直至成粉。成粉后的物料繼續向碾盤邊緣移動,直到被進風口的強氣流帶走,氣流中的物料經過上部選粉機時,在高速旋轉的葉輪產生的離心力作用下,粗顆粒重新落入碾盤碾磨,合格粉體隨氣流穿過選粉系統后被除塵器收集,即為成品。

多頭選粉機工藝流程
物料在風機抽力作用下由分級機下端入料口隨上升氣流高速運動至分級區,在高速旋轉的分級渦輪產生的強大離心力作用下,使粗細物料分離,符合粒徑要求的細顆粒通過分級輪葉片間隙進入旋風分離器或除塵器收集,粗顆粒夾帶部分細顆粒撞壁后返回磨腔內重新研磨。